Eyeing an opening at the end of March 2016, partners Drew Schenck and Kevin Barrett are sharing plans for “Dram and Draught” which will occupy the former three-bay auto shop at the corner of Hillsborough Street and Boylan Avenue.
- Former auto shop being renovated to house Dram and Draught
- Curious what’s going on here?
- Please, don’t actually call this number.
- Interior construction already under way at Dram and Draught
- Interior construction already under way at Dram and Draught
- Interior construction already under way at Dram and Draught
Kevin Barrett, known for directing the craft cocktail culture at Fayetteville Street’s Foundation, will serve as full-time Operations Manager. Schenck will continue to operate his popular Rally Point Sport Grill in Cary, while providing managing support for this new Downtown Raleigh concept. Each brings unique experience to the concept: Barrett, a sommelier, previously owned and operated a wine shop in Wilmington, while Schenck, who has been home-brewing since 1986, is no stranger to the Triangle restaurant and bar scene.
Schenck shares that Dram and Draught will have a significant focus on whiskey, possibly more than anywhere else locally, but will also have a strong craft cocktail, beer, and wine portfolio. The bar itself will have room for 1,100 bottles, which will include a wide variety of whiskeys from North America, Japan, Scotland, and other international origins. The cocktail menu will rotate often, as well as the beer 12 taps focusing on true craft beers. Occasional features will appear from three different local breweries which will be producing exclusive brews available only at Dram, Rally Point, and the breweries themselves.
In addition to the broad product selection, unique processing equipment like a centrifuge will be brought in will allow for extremely high-quality ingredients, including lime juice that’s pure citrus, with no bitter after-taste – and pure sugar cane juice extracted from cane purchased in South Carolina. (Schenck adds that he’s yet to find it available in North Carolina, but obviously has a preference for sourcing as locally as possible.)
Renderings of the proposed design are shared below. Of the original three garage bays, two will still feature garage doors that open to take advantage of Raleigh’s enjoyable spring, summer, and fall weather.
- Possible interior design influences for Dram and Draught
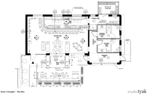
- Floor plan for Dram and Draught
- Interior bar plans for Dram and Draught
- More interior bar plans for Dram and Draught
A modest food menu will be offered, but the bar itself will only have a small prep area and not a full-service kitchen. Parking will be available in both front and rear lots after 5 p.m. Dram and Draught will be open 5 p.m. until 2 a.m. every day of the week.
Local Artists and Fans Take Note: On First Fridays, Schenck’s interest in local art will be highlighted with a new installation each month. The art will remain on-site and available for purchase the entire month – of which Dram will not take a cut of the proceeds.
Stay tuned for more pictures and updates as construction moves along on this new addition to the Downtown Raleigh bar scene, and follow along on their Facebook page at https://www.facebook.com/dramanddraught.
- Discover Downtown Tour: 301 N. West Street - January 17, 2020
- Downtown Raleigh Restaurant Week Celebrates 10th Anniversary in August - July 30, 2018
- Market on Market Returns Each Wednesday to DTR - May 22, 2018











